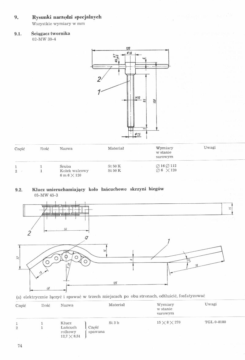
<- Back | Index | Next ->

74.JPG