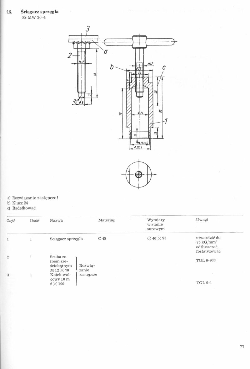
<- Back | Index | Next ->

77.JPG